家装效果图
工装效果图
室外建筑图
施工图深化
VR全景图
文章
文章
搜索
首页
服务
家装
工装
室外
全景
施工图
新闻
联系
素材案例
1
2
3
4
5
首页
>>
新闻
>>
施工图
>>
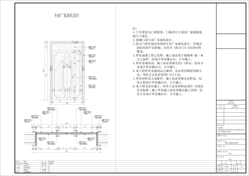
会所改造装饰施工图
新闻
新闻资讯
施工图
效果图
详细内容
会所改造装饰施工图
上一篇
从蓝图到逼真呈现,北京效果图制作公司显神威
下一篇
某展厅全套施工图
高品质制作
高效率完成
用品质说话
对成果负责
网站导航
更多
网站首页
服务事项
人才招聘
关于我们
联系我们
服务项目
更多
家装效果图
工装效果图
室外效果图
全景效果图
施工图深化
网站导航
服务项目
腾讯qq
新浪微博
腾讯微信
资讯分享
联系我们
北京朝阳 三元桥 时间国际大厦
tulifang@163.com
010-57731388
010-57035688
CULTURE MEDIA
Copyright 2014-2025,All rights reserved
技术支持:
建站ABC
|
管理登录